Používame cookies

Súbory cookie a ďalšie technológie sledovania používame na zlepšenie vášho zážitku z prehliadania našich webových stránok, na to, aby sme vám zobrazovali prispôsobený obsah a cielené reklamy, na analýzu návštevnosti našich webových stránok a na pochopenie toho, odkiaľ naši návštevníci prichádzajú. Viac info

Nový 4i masívny zrub Polomka Nízke Tatry

Popis nehnuteľnosti

Zdieľať na Facebooku

Ručne vyrobený masívny zrub z guľatiny sa nachádza v Polomke, horehronskej dedine medzi masívmi Nízkych Tatier a Slovenského Rudohoria. Je situovaný v pokojnej časti obce na slnečnom pozemku.

Novostavba vyrobená z dreva vyťaženého z nadmorskej výšky min 600 m n.m. v zime 2023 má zastavanú plochu 119m2 a bude vedená ako rodinný dom. Každý kus dreva bol starostlivo vybraný, ručne opracovaný a prispôsobený, aby presne dosadal na susedný kus a tvoril dokonalý masívny celok.

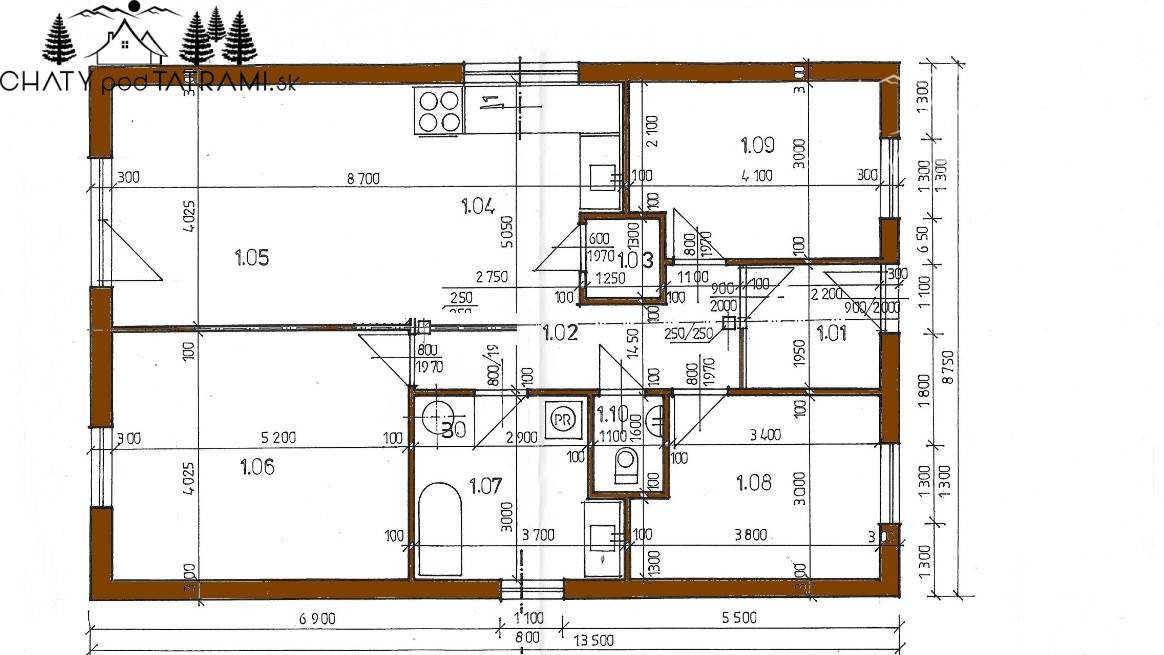
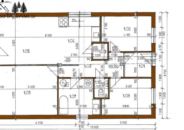
V jednopodlažnom zrube sa nachádza vstupná chodba, kuchyňa s jedálenským kútom, komora, obývacia izba s kachľovou pecou, priestranná hlavná spálňa, dve izby, veľká kúpeľňa a samostatná toaleta.

Stavba je napojená na kanalizáciu, vodovod, elektrinu a optický internet. Na rovinatom oplotenom pozemku o výmere 551 m2 je miesto na parkovanie pre autá.

Ešte nezastavaný susedný pozemok o výmere 601 m2 so stavebným povolením a inžinierskymi sieťami je tiež možné prikúpiť.

Zrub je vhodný na rekreačné účely aj na krátkodobý prenájom. Pár minút pešo je centrum obce s kompletnou občianskou vybavenosťou. Priamo v obci je obľúbené lyžiarske stredisko s umelým zasnežovaním Polomka – Búčnik, rozhľadňa Polomské očko, lezecká stena a množstvo turistických a cyklistických chodníkov.
V susednej obci je krytá plaváreň, rybník, bowling, tenisové kurty a všade okolo prekrásna príroda národných parkov Nízke Tatry a Muránska planina.

Podrobné informácie a ďalšie ponuky nájdete na CHATYpodTATRAMI.sk aj na našich sociálnych sieťach.

Časti textu a fotografie je možné použiť iba so súhlasom autora © 2025 - Chaty pod Tatrami s.r.o.

Vlastnosti

Status:
aktívne
Vlastníctvo:
osobné
Plocha pozemku:
551 m2
Úžitková plocha:
119 m2
Zastavaná plocha:
119 m2
Stav:
pôvodný stav
Počet izieb:
4
Verejné vonkajšie parkovanie:
áno
Rok výstavby:
2025
Celková plocha:
551 m2
Inžinierske siete:
áno
Voda:
áno
Elektrika:
áno
Plyn:
áno
Kanalizácia:
áno
Voda - na pozemku - vodný zdroj:
áno
Optická sieť:
áno

Hypotekárna kalkulačka

249 000 €
Interné ID: 175
Ulica: SNP
Obec: Polomka
Okres: Brezno
Kraj: Banskobystrický kraj
Druh: Domy
Typ: Predaj
Typ domu: Rodinný dom

Radi Vám poradíme