Používame cookies

Súbory cookie a ďalšie technológie sledovania používame na zlepšenie vášho zážitku z prehliadania našich webových stránok, na to, aby sme vám zobrazovali prispôsobený obsah a cielené reklamy, na analýzu návštevnosti našich webových stránok a na pochopenie toho, odkiaľ naši návštevníci prichádzajú. Viac info

Nový 4i dom na okraji mesta Brezno Nízke Tatry

Popis nehnuteľnosti

Zdieľať na Facebooku

Dom sa nachádza v okrajovej časti Brezna. Je to posledná stavba v intraviláne mesta, na výjazde do podhorskej dedinky Mýto pod Ďumbierom. Je situovaný na rovinatom pozemku pod lesom.

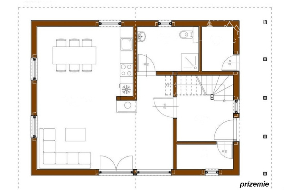
Stavba o rozmere 10x7m bude na liste vlastníctva vedená ako rodinný dom, je drevená, sendvičovej konštrukcie a predáva sa v štádiu holodom. Po dohode je možnosť dokončenia podľa vlastných predstáv. Na prízemí je naplánovaná vstupná chodba, technická miestnosť so svojím vchodom, obývacia izba spojená s kuchyňou a krbom, kúpeľňa s toaletou a terasa. Na poschodí sú tri samostatné izby, balkón a druhá priestranná kúpeľňa s toaletou.

Na pozemku pri dome je nová elektrická prípojka, odpad bude vyvedený do trojkomorového septika a voda je z vodovodu. Ku stavbe vedie udržiavaná cesta.

Približne 8 min. autom je obľúbené lyžiarske stredisko a bike park Mýto pod Ďumbierom (kopeczabavy.sk), a odtiaľ ďalších pár minút jazdy do lyžiarskeho strediska Chopok Juh so 45 km zjazdoviek na južnej a severnej strane (jasna.sk), prípadne na Tále, kde v lete nájdete aj 27 jamkové golfové ihrisko (tale.sk) a v zime udržiavané bežkárske trate. Obľúbeným cieľom turistov v blízkom okolí je aj farma s možnosťou vozenia na koňoch, Bystrianska jaskyňa, či Jaskyňa mŕtvych netopierov, taktiež je v tu množstvo trás pre turistov a cykloturistov.

Podrobné informácie a ďalšie ponuky nájdete na CHATYpodTATRAMI.sk aj na našich sociálnych sieťach.

Časti textu a fotografie je možné použiť iba so súhlasom autora © 2025 - Chaty pod Tatrami s.r.o.

Vlastnosti

Status:
aktívne
Vlastníctvo:
osobné
Plocha pozemku:
500 m2
Typ zeme:
rovina
Úžitková plocha:
140 m2
Zastavaná plocha:
70 m2
Stav:
novostavba
Počet izieb:
4
Energetický certifikát:
žiadne
Verejné vonkajšie parkovanie:
áno
Rok výstavby:
2024
Počet poschodí od prízemia vyššie:
1
Celková plocha:
160 m2
Inžinierske siete:
áno
Voda:
áno
Elektrika:
áno
Kanalizácia:
áno
Voda - na pozemku - vodný zdroj:
áno
Kanalizácia - na pozemku - septik:
áno
Internet:
áno

Hypotekárna kalkulačka

269 000 €
Interné ID: 133
Obec: Brezno
Okres: Brezno
Kraj: Banskobystrický kraj
Druh: Domy
Typ: Predaj
Typ domu: Rodinný dom

Radi Vám poradíme