Používame cookies

Súbory cookie a ďalšie technológie sledovania používame na zlepšenie vášho zážitku z prehliadania našich webových stránok, na to, aby sme vám zobrazovali prispôsobený obsah a cielené reklamy, na analýzu návštevnosti našich webových stránok a na pochopenie toho, odkiaľ naši návštevníci prichádzajú. Viac info

Predaj, Prenájom 2i apartmán s garážou Tále NízkeTatry

Popis nehnuteľnosti

Zdieľať na Facebooku

Predstavujeme vám dvojizbový apartmán na predaj, ktorý sa nachádza v prestížnom uzavretom areáli novopostavených apartmánových domov v lyžiarsko-turistickom stredisku Tále, v srdci národného parku Nízke Tatry. Tento apartmán je skrytý v malebnej Bystrianskej doline, pri brehu horského potoka Bystrianka, ktorý svojím žblnkotom vytvára jedinečnú atmosféru, obklopený hustými ihličnato-listnatými lesmi. Slnečná lokalita ponúka nádherný výhľad na majestátne končiare Nízkych Tatier.

Apartmánový komplex v lokalite Tále je jedným z najdlhšie fungujúcich a najlepšie udržiavaných komplexov na južnej strane Nízkych Tatier.

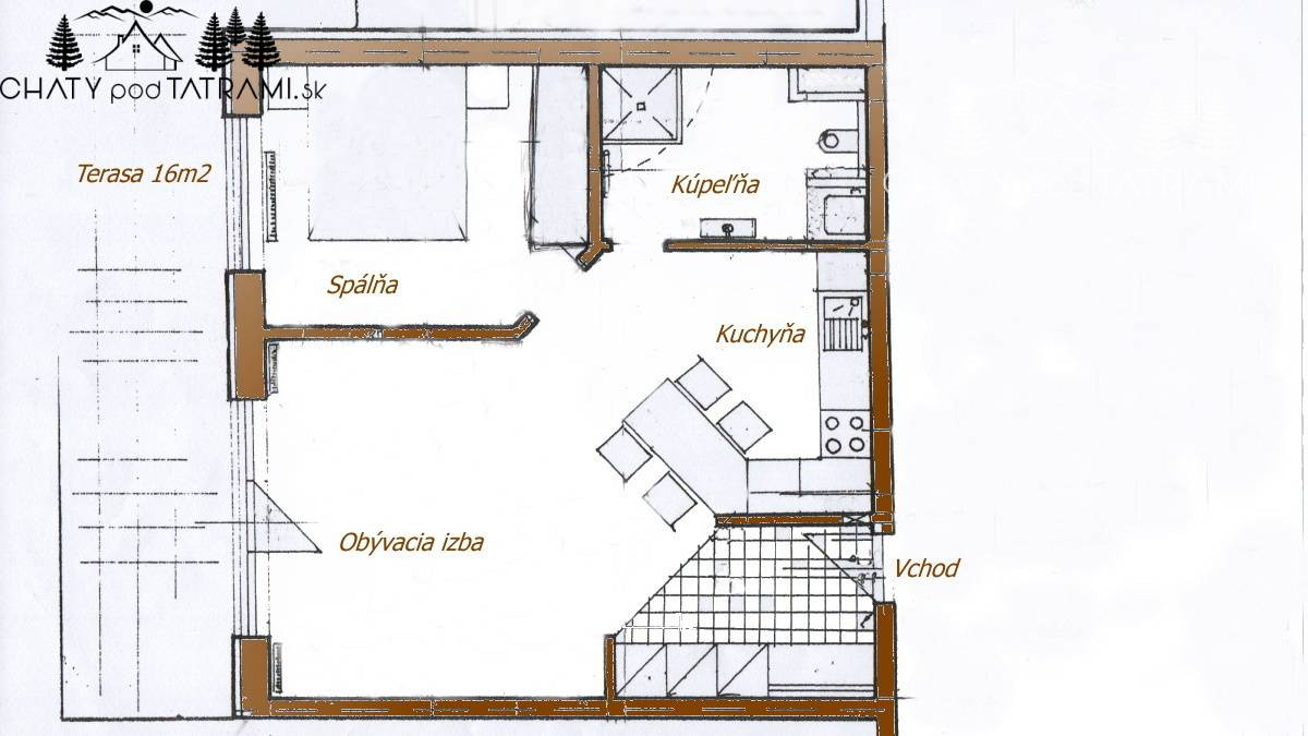
Apartmán sa nachádza v zateplenom murovanom dome kolaudovanom v roku 2009, na treťom poschodí z piatich, s výťahom. Je orientovaný na juhovýchod a má výmeru 51 m², plus terasa s výmerou 16 m², ktorá sa tiahne pozdĺž celého bytu. K apartmánu prislúcha aj pivnica (lyžiareň) na prízemí bytového domu o výmere 2,6 m², vybavená sušičom na lyžiarky.

Interiér apartmánu zahŕňa zádverie so vstavanou skriňou, priestrannú obývaciu izbu, kuchyňu s modernou kuchynskou linkou a vstavanými spotrebičmi, jedálenský kút, spálňu s manželskou posteľou, poschodovou posteľou a odkladacími priestormi. Byt je zariadený na mieru vyrobeným kvalitným nábytkom. Z obývačky je priamy východ na slnečnú terasu s výhľadom na okolitú prírodu. K apartmánu patrí parkovacie miesto v garáži na prízemí, ktoré je súčasťou predaja. Vykurovanie je zabezpečené elektrickými konvektormi a podlahovým vykurovaním s rebríkovým radiátorom v kúpeľni.

Apartmán sa využíva aj na krátkodobý prenájom s výborným hodnotením od klientov.

V stráženom areáli sa nachádza prístrešok na posedenie a grilovanie pre rezidentov. V blízkosti areálu sú tenisové kurty, detské ihrisko a reštaurácia s tradičnou slovenskou kuchyňou. Len 2 km od apartmánu sa nachádza obľúbené lyžiarske stredisko Tále s umelým zasnežovaním, večerným lyžovaním a bežkárskymi traťami. Súčasťou strediska je aj 27-jamkové golfové ihrisko s detskou golfovou akadémiou. Na relaxáciu a oddych môžete navštíviť vodný a wellness svet v Hoteli Bystrá, ktorý je vzdialený len pár minút pešo, alebo Hotely Partizán a Stupka na Táľoch. Pre náročnejších lyžiarov je ideálne 7 km vzdialené lyžiarske stredisko Chopok Juh so 45 km zjazdoviek na južnej a severnej strane, dostupné aj skibusom s neďalekou zastávkou.

Časti textu a fotografie je možné použiť iba so súhlasom autora © 2026 - Chaty pod Tatrami s.r.o.

Podrobné informácie a ďalšie ponuky nájdete na CHATYpodTATRAMI.sk

 

Vlastnosti

Status:
aktívne
Vlastníctvo:
osobné
Úžitková plocha:
67 m2
Zastavaná plocha:
67 m2
Stav:
pôvodný stav
Počet izieb:
2
Terasa:
áno
Garáž:
áno
Pivnica:
áno
Verejné vonkajšie parkovanie:
áno
Výťah:
áno
Rok výstavby:
2009
Rok kolaudácie:
2009
Počet poschodí od prízemia vyššie:
5
Poschodie:
3
Celková plocha:
67 m2
Terasa plocha:
16 m2
Počet terás:
1
Počet garáží:
1
Pivnica plocha:
2.6 m2
Vykurovanie - podlahové:
áno
Vykurovanie - lokálne:
áno
Káblová TV:
áno
Optická sieť:
áno

Hypotekárna kalkulačka

199 900 €
Interné ID: 157
Ulica: Tále
Obec: Bystrá
Okres: Brezno
Kraj: Banskobystrický kraj
Druh: Byty
Typ: Predaj
Typ bytu: 2-izbový byt

Radi Vám poradíme