Používame cookies

Súbory cookie a ďalšie technológie sledovania používame na zlepšenie vášho zážitku z prehliadania našich webových stránok, na to, aby sme vám zobrazovali prispôsobený obsah a cielené reklamy, na analýzu návštevnosti našich webových stránok a na pochopenie toho, odkiaľ naši návštevníci prichádzajú. Viac info

Stavebný pozemok s IS v lesnom prostredí Jarabá Nízke Tatry

Popis nehnuteľnosti

Zdieľať na Facebooku

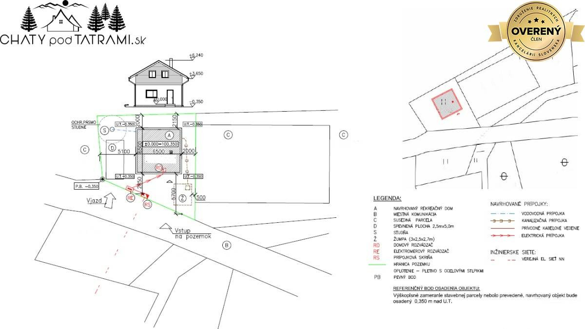
Pozemok sa nachádza v útulnej dedinke pod Čertovicou, v Jarabej. Je situovaný v okrajovej časti chatovej osady, 1km vzdialený od rušnej hlavnej cesty, v nadmorskej výške 1000m n.m. Je prístupný po udržiavanej spevnenej ceste vo vlastníctve obce.

Pozemok sa nachádza v lesnom prostredí neďaleko horského potôčika. Celková výmera je 162 m2, na liste vlastníctva je vedený ako TTP. Na hranici pozemku je novovybudovaná elektrická domová prípojka a je tu plánovaná vŕtaná studňa.

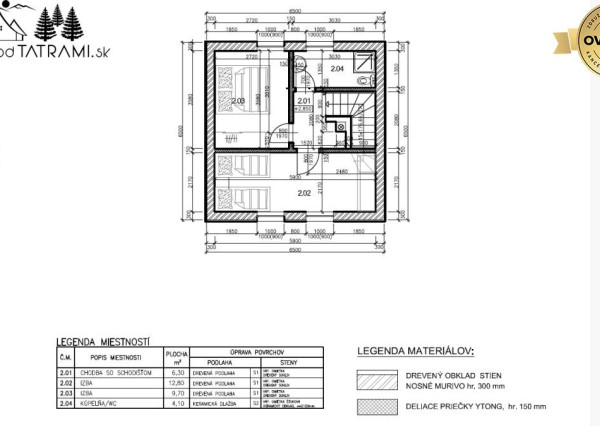
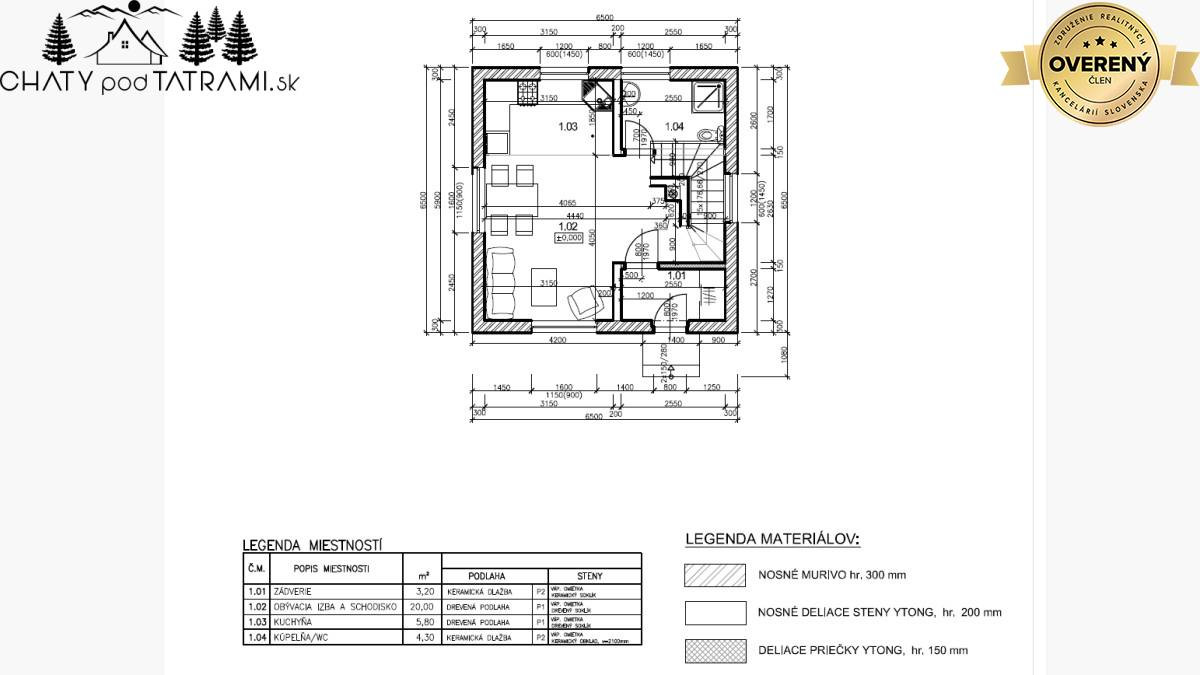
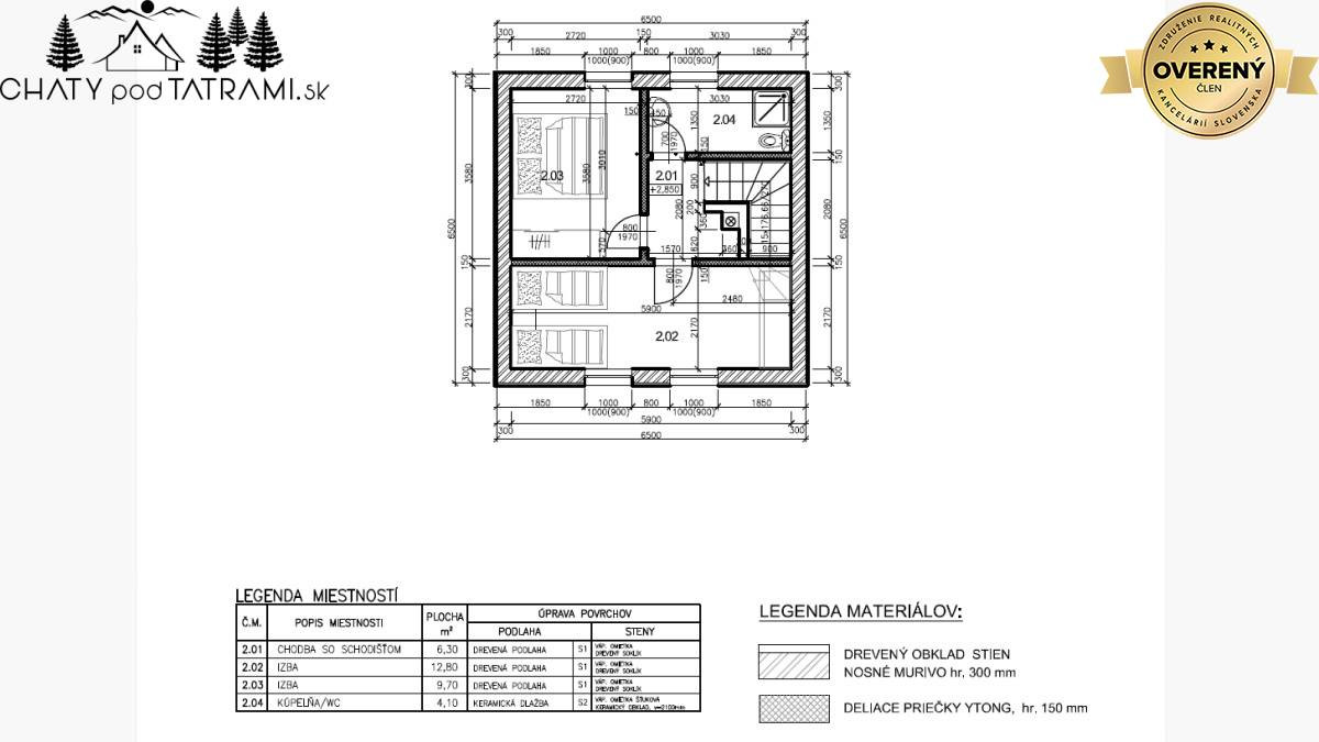
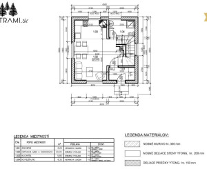
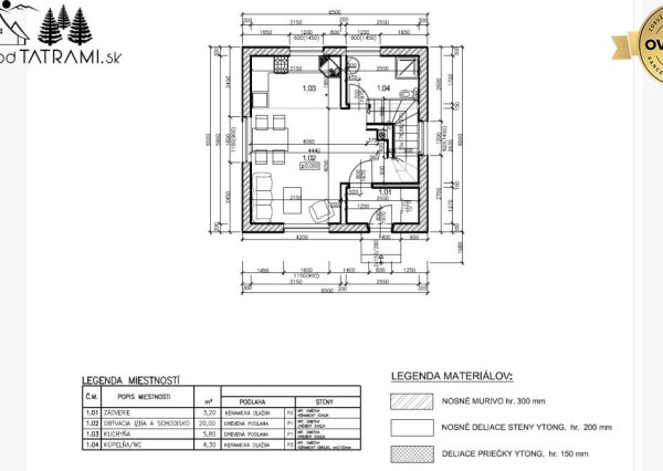
Na pozemku je vydané stavebné povolenie na výstavbu 3i rekreačnej chaty 6,5 x 6,5 m o zastavanej ploche 42,3 m2.

Dedinka Jarabá je vzdialená 6km od lyžiarskeho strediska a obľúbených bežkárskych tratí Čertovica. 8km je vzdialené lyžiarske stredisko Mýto pod Ďumbierom (kopeczabavy.sk) a v okruhu 20km sú ďalšie lyžiarske strediská Tále (tale.sk), či Chopok-Juh (jasna.sk) pre náročných lyžiarov. V okolí Jarabej je prekrásna príroda s možnosťami hubárčenia, turistiky a cykloturistiky (horehronie.sk)

Podrobné informácie a ďalšie ponuky nájdete na CHATYpodTATRAMI.sk aj na našich sociálnych sieťach.

Časti textu a fotografie je možné použiť iba so súhlasom autora © 2025 - Chaty pod Tatrami s.r.o.

Vlastnosti

Status:
aktívne
Vlastníctvo:
osobné
Plocha pozemku:
162 m2
Celková plocha:
162 m2
Orientácia:
juh
Inžinierske siete:
áno
Elektrika:
áno
Kanalizácia:
áno
Elektrika - na pozemku - 380 V:
áno
Kanalizácia - na pozemku - žumpa:
áno
55 000 €
Interné ID: 178
Obec: Jarabá
Okres: Brezno
Kraj: Banskobystrický kraj
Druh: Pozemky
Typ: Predaj
Typ pozemku: Pozemok na rekreáciu

Radi Vám poradíme